初见你的模样 | 超大衣帽间,多功能客厅,为女主人量身定制的家 简单的家居 ,往往带给人们更多的享受。
项目地址:深圳四季公馆 设计面积:70㎡ 设计风格:现代 项目类型:平层精装
设计理念
业主X小姐,刚柔并济工作干练,生活中柔软随着与业主接触越发深入设计思路也便也一点点跑了出来不用刻意为之,随性舒适地落笔最后呈现出与屋主契合的感觉
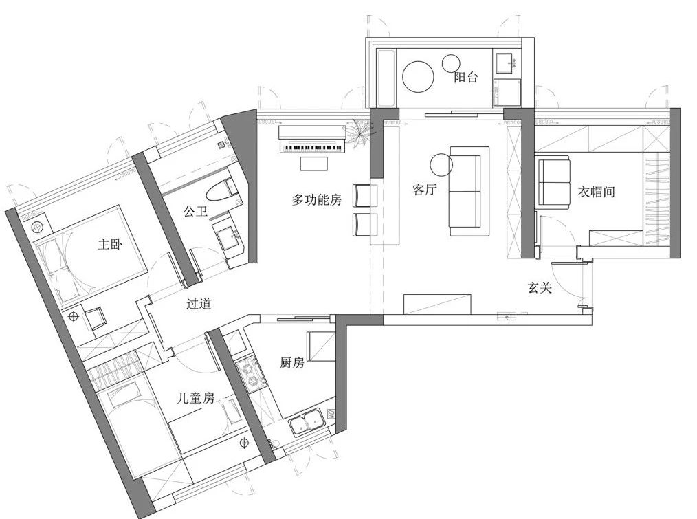
本案例为精装房软装设计,由于多为承重墙,因此硬装上没有较大改动,只在布局方面调整。
色系上,以澄净无瑕的白为主,辅以原木的灰和少量的刚性黑,打造出通透灵动却不失力量的气场。搭配上,讲究去冗存真,给人洗尽铅华的轻松感和舒适感。


























关于我们
作品案例
设计团队
指导
联系
立即预约
我们将尽快联系您,为您提供免费体验服务。